Der neue Feuerwehrstandort in Bonn verbindet höchste funktionale Anforderungen mit einem zukunftsweisenden architektonischen Konzept. In zwei Bauabschnitten entwickelt, bildet er gemeinsam mit dem benachbarten bonnorange-Neubau ein harmonisches städtebauliches Ensemble. Klare Linienführung, schwebende Gebäudeteile sowie das Spiel von massiven Sockeln und leichten, begrünten Obergeschossen prägen das Erscheinungsbild. Der erste Bauabschnitt ruht auf den Fahrzeughallen und bildet durch seine zurückspringende Struktur eine markante, zugleich offene Figur zur Wohnbebauung.
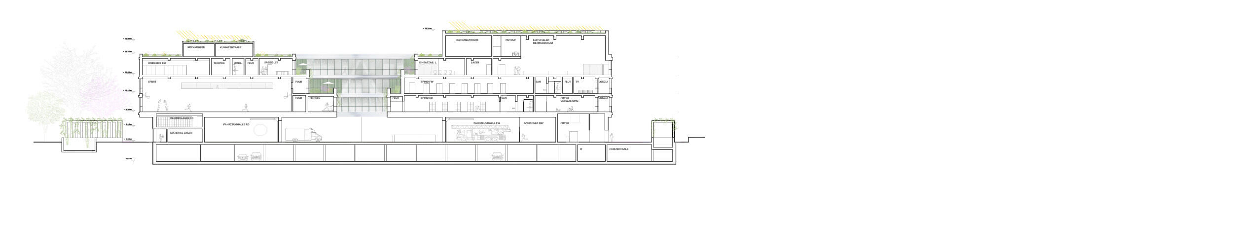
Im Inneren zeichnet sich das Gebäude durch eine hochfunktionale, flexible Raumstruktur aus. Das Erschließungssystem trennt die Wege klar voneinander, während ein zentraler Innenhof sowie Loggien und Terrassen für Aufenthaltsqualität sorgen. Die Architektur unterstützt dabei nicht nur effiziente Arbeitsabläufe, sondern auch Kommunikation und Rückzugsmöglichkeiten.
- Auslober
-
Stadt Bonn
- Projektpartner
-
G-TEC Ingenieure GmbH
- Verfahren
- Nichtoffener Realisierungswettbewerb nach RPW
- Flächen
- BGF 26.672 m² | BRI 116.847 m³
- Ort
- Bonn
- Visualisierung
-
SUPERGELB ARCHITEKTEN | formtool.de




Nachhaltigkeit steht im Fokus: Extensive Dachbegrünung, recycelbare Materialien, Photovoltaik und ein innovatives Eisspeicher-Wärmepumpensystem machen das Projekt zu einem energetischen Vorbild. Das Ziel ist die Einstufung als Effizienzgebäude 40 mit QNG-Premium.

