Zum Hauptinhalt der Seite springen

232 | Abfallwirtschaftsgesellschaft - Leverkusen

Der Umbau eines ehemals Heilpädagogischen Zentrums zu einem Verwaltungsbau erfolgte durch den Rückbau des bestehenden Gebäudes bis auf den Teilrohbau. Die vorhandene Kammstruktur wurde durch zwischen die Riegel gesetzte Glashäuser erweitert, um die Nutzfläche für eine offenes Bürokonzept für Kleingruppenarbeiten (3-4 Personen) zu erhalten. Von Anfang an waren die Überlegungen zum haustechnischen und energetischen Konzept des Baus von der Vorstellung geprägt, ein Gebäude mit möglichst geringer Technik und geringem Energieverbrauch zu erstellen. Durch eine deutliche Reduzierung der Hülloberfläche, Optimierung der Hülle (hoch isolierend) und den Einbau von Glashäusern zur Nutzung der passiven Solarenergie konnte der Energieverbrauch stark gesenkt werden. Speziell für die Glashäuser entwickelte mulitfunktionale Leuchten (Ambilux Pandion) ergänzen diese Maßnahmen.

Fertigstellung
1995
Bauherr
Abfallwirtschaftsgesellschaft Leverkusen mbH
Projektpartner
IWS-Ingenieur Consult GmbH, Köln (TGA) Ingenieurbüro Blasberg+Rauhaus, Leverkusen (Statik) G+S u. Partner mit Lill, Sparla, Prof. Neumann (Freiraumplanung) G+S u. Partner mit Köster (Licht)
Flächen
BGF: 6.732 m² | BGI: 30.585 m³
Ort
Leverkusen, NRW
Wettbewerb
eingeladener Wettbewerb
Fotos

Jens Willebrand

Erdgeschoss
Erdgeschoss
Schnitt Glashalle
Schnitt Glashalle
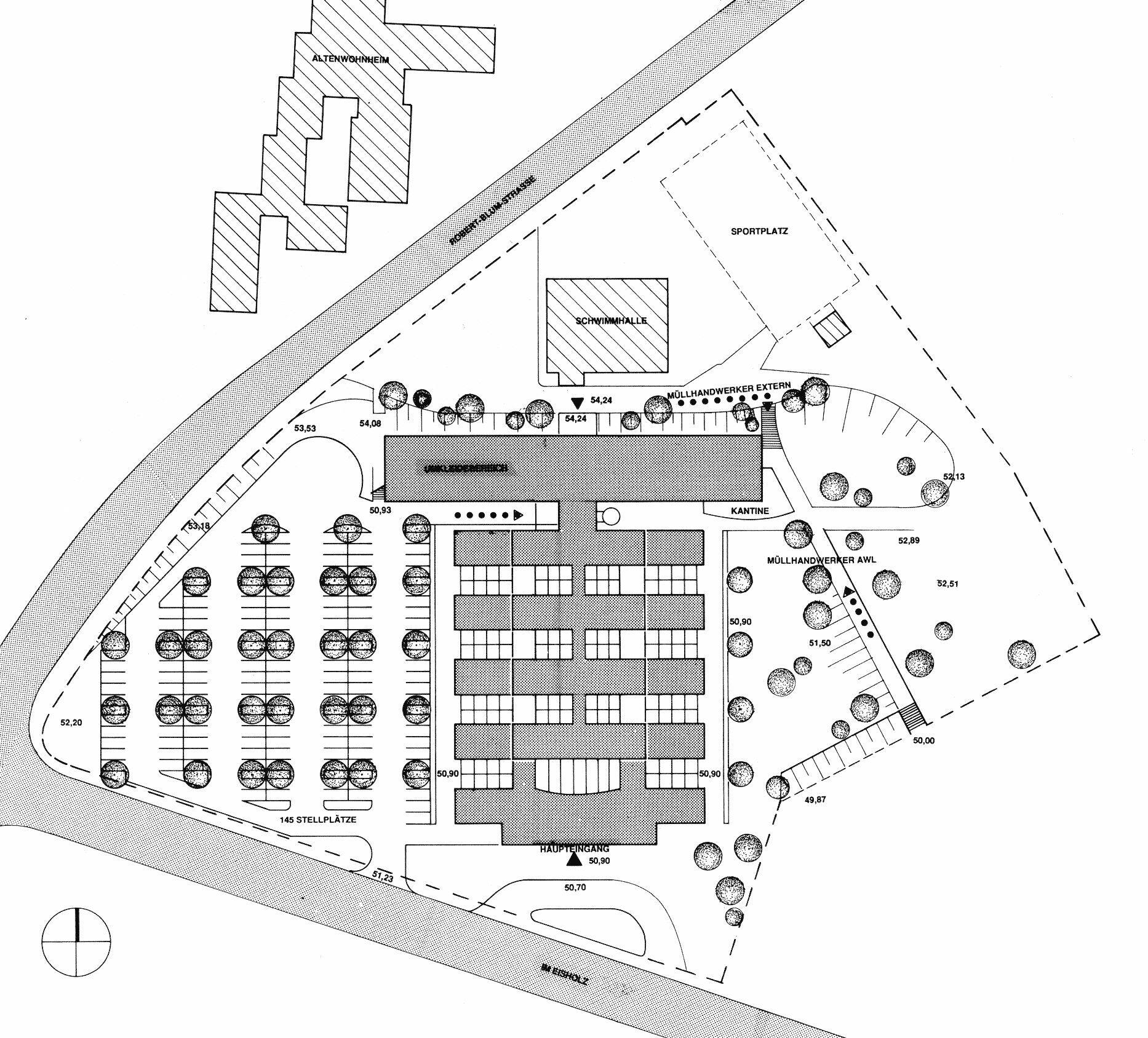
Lageplan
Lageplan
Nach obenNach oben