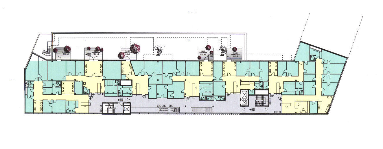
Die Klinik Rodenkirchen lebt in ihrer Außenwirkung von dem schlichten, zurückhaltenden weiß-silbernen Baukörper und der großflächigen Verglasung der dreigeschossigen Eingangshalle. Dieser offene, lichtdurchflutete Raum verbindet sowohl die im Erdgeschoss gelegenen Läden und Gastronomie mit den darüberliegenden Arztpraxen, als auch den Außenraum mit den inneren Nutzungen und schafft dadurch einen wettergeschützten, kommunikativen Platz. Weiteres, prägendes Element des Gebäudes ist der alle Geschosse verbindende Treppenturm, der, in warmem Holzton verkleidet, Kontrast zu Stahl und Glas bildet. Das Material Holz findet sich in den Bodenbelägen der Halle wieder und fließt in den Obergeschossen bis in die Praxen hinein. Wichtigster Baustein zur Bildung der "Corporate Identity" ist das Farbkonzept des Gebäudes, das besonders vor dem ruhigen Erscheinungsbild des Gesamtbaukörpers zur Wirkung kommt. Zur Halle hin erhält jede Praxis eine ihr eigene Grundfarbe, die sich als interleuchtete Glaswand zur offenen Magistrale präsentiert und bis in den Außenraum strahlt. Innerhalb wird die Farbe als Grundelement der Innenausstattung weitergetragen.
- Fertigstellung
- 2002
- Leistungsphasen
- 1-5, 6-8
- Bauherr
- Forum Immobilien GmbH Köln
- Projektpartner
- AWD Ingenieurgemeinschaft, AGNE-Wahlen-Daubenbüchel (Statik) Helmut Link, Herzogenrath, Planungsgruppe HKL, Dreieich(TGA) Kress&Adams (Licht) Roeser Medical (Medizintechnische Planung und Medizintechnik)
- Flächen
- BGF: 9.686 m² | BGI: 36.085 m³
- Ort
- Ärztehaus Rodenkirchen - Köln
- Fotos
-
J. Willebrand
- Projektnummer / Copyright
- © GATERMANN + SCHOSSIG
