Zum Hauptinhalt der Seite springen

567 | Dominium, Generali Deutschland Holding - Köln

In dem Entwurf der Außenhülle orientierte sich Hans Kollhoff, Architekt der 7-10 geschossigen Bebauung, an den kleinteiligen Gebäudeparzellierungen, sowie den historischen Fassadenausbildungen.
Mit der Generali Deutschland Holding, als ausschliesslicher Nutzer des vorher für 45 Mieteinheiten ausgelegten Komplexes, wurden neue Raumzusammenhänge und ein anderes Erscheinungsbild im Inneren des Gebäudes notwendig.
Für die mit dem Innenausbau beauftragten Architekten Gatermann + Schossig entstand die Herausforderung, den Innenraum zu einem Gesamtobjekt zu verschmelzen und in einem Ensemble erlebbar werden zu lassen. Bewusst wird der Bruch zum Stil der äußeren Fassadendarstellung gewählt und das Innere als fließender Raum aus Glas, Stein und Metall, aus Licht, Materialität und Farbe konzipiert - zurückhaltend genug um das Äußere nicht zu stören, kraftvoll genug um auch die zukunftsorientierte Haltung des Unternehmens zu reflektieren.
Materialien und Farben orientieren sich im gesamten Gebäude durchgehend am CI-Konzept des Unternehmens und führen zum Corporate Design. Um eine zusätzliche Individualität zu erreichen, wurden die festen Einbauten, Empfangstresen und Ausgabetresen sowie ein Großteil der Möbel von Gatermann + Schossig entworfen.

Fertigstellung
April 2009
Bauherr
Hochtief Projektentwicklung GmbH, KÃ
Nutzer
Generali Deutschland Holding AG
Projektpartner
Projektsteuerer (Ernst&Young PWP) Projektentwicklung (Hochtief Projektentwicklung GmbH Niederlassung Rhein-Ruhr) Ausführung (Hochtief Construction AG Düsseldorf) Kress&Adams(Lichtplanung) Schönfeld, Ingenieurgesellschaft für Technische Gebäudeausrüstung (Haustechnik) TOHR Ingenieurgesellschaft (Bauphysik) Calorelektrik (Elektro) Corall (Brandschutz) IDK Ingenieurbüro D. Kleinjohann (Tragwerk) Bauleitung:Intertec Ingenieurgesellschaft, Berlin
Flächen
BGF: 24.600 m² | BGI: 74.340 m³
Ort
Köln
Veröffentlichungen
db 06 2010
Fotos

J. Willebrand, (2,9) E.Wiedenhöver

Projektnummer / Copyright
© GATERMANN + SCHOSSIG

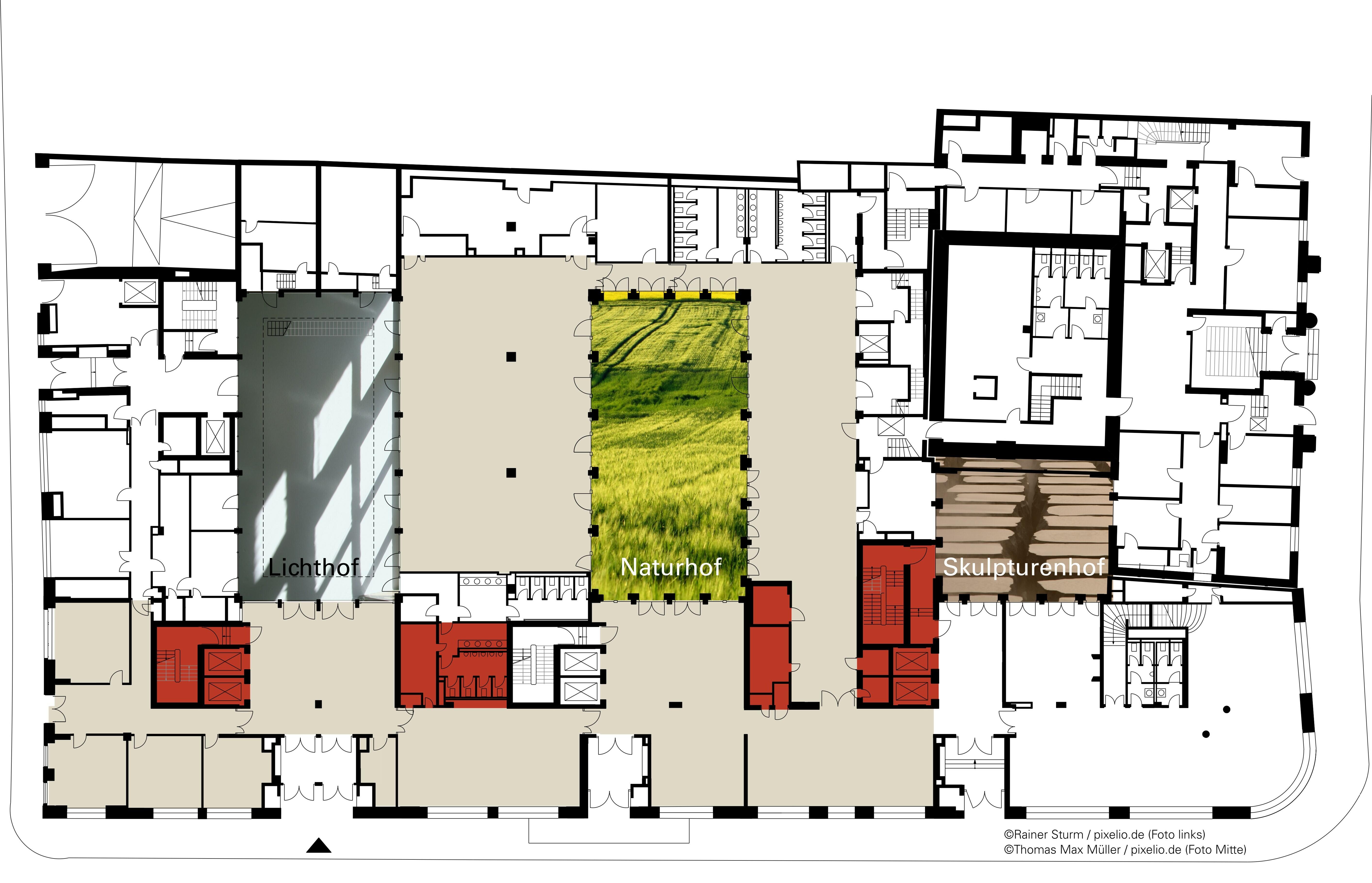
Grundriss

Dominium, Generali Deutschland Holding - Köln
Nach obenNach oben