Drei unterschiedlich hohe Baublöcke entlang dreier Straßen verschränken sich zu einem Gebäude = Overlap.
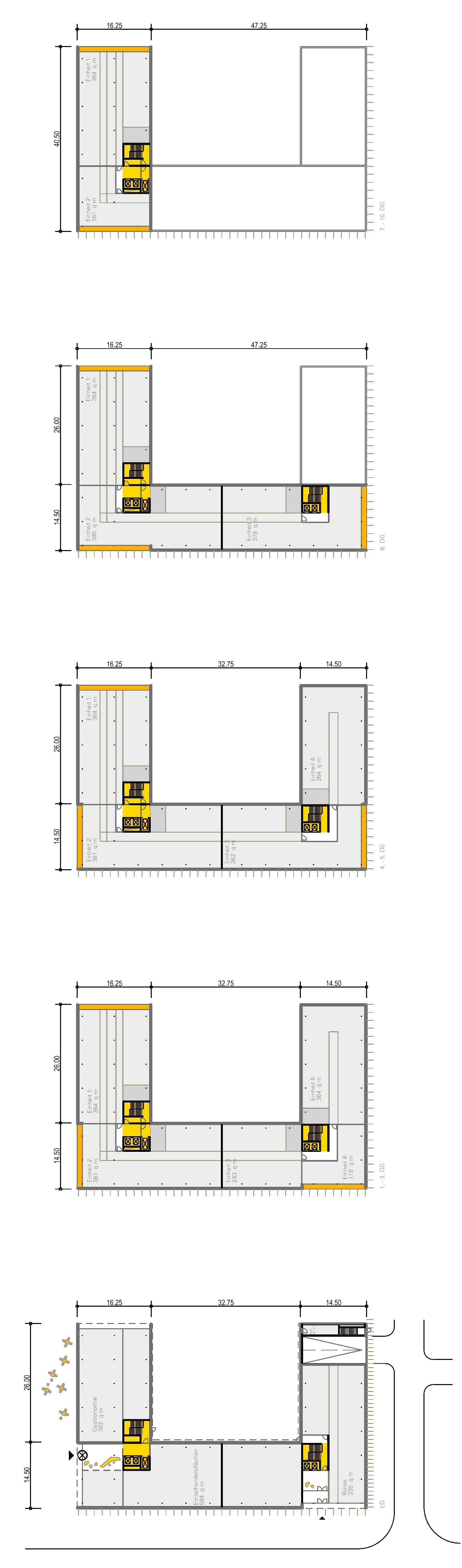
Über das repräsentative Foyer zur Heidestraße erfolgt die vertikale Erschließung der Büros über zwei Kerne, was eine hohe Flexibilität mit bis zu vier Mieteinheiten pro Etage generiert. Eingeschnittene und windgeschützte Loggien stellen einen Außenbezug zur Wohnbebauung mit hoher Aufenthaltsqualität her. Notwendige Technikflächen werden in abgesenkte Mittelzonen innerhalb der Struktur angeordnet und sind somit nicht vom Straßenraum wahrnehmbar. Zudem erhält der Gebäudekomplex hierdurch eine "fünfte Fassade".
Auf der Grundlage von LEED Prozessen, mit vorgesehener Gold Zertifizierung, wird ein solides, und im Sinne der Effizienz und Wirtschaftlichkeit, einfaches Energiekonzept entwickelt. Der Schwerpunkt liegt auf einer hohen Flächeneffizienz als elementarer Beitrag zur Nachhaltigkeit und ökonomischen Qualität sowie auf einer hohen soziokulturellen Qualität mit thermischem, visuellem und akustischem Komfort.
- Fertigstellung
- WBW 2016
- Auslober
- DWI Grundbesitz GmbH
- Verfahren
- Einladungswettbewerb
- Flächen
- BGF 17.000 m² | BGI 64.500 m³
- Ort
- Berlin
Pläne


