Als repräsentatives Empfangsgebäude des Campus der Fernuniversität Hagen bildet der Neubau der Psychologie den Auftakt der Universitätsstraße. Der Vorplatz mit Bäumen, Grünflachen und Sitzgelegenheiten bietet eine hohe Aufenthaltsqualität und lädt die Besucher ein, sich auf dem Geländecampus zu orientieren.
Der Baukörper ist in Sockelgeschoss und aufgesetztem Büroriegel gegliedert. Auf dem breiten gläsernen Sockel ruht ein schmaler massiver Riegel, dessen Auskragung eine Überdachung für das Foyer generiert. Die großzügige Treppe des Foyers bildet ein gestalterisches Augenmerk und dient der direkten Erschließung der Galerie und des Experimentalbereiches. Die „nicht öffentlichen“ Besprechungs- und Büroräume in den oberen Etagen des Riegels werden über einen internen Erschließungskern erschlossen. Die Differenzierung von Sockel und Riegel ist neben den Funktionen auch in der Materialität ablesbar. Der Büroriegel bildet mit seiner nachhaltigen modularen Holz Element Fassade einen schönen Kontrast zum leichten transparenten Unterbau.
Materialien in ihren natürlichen Zuständen und die sichtbare Technik geben dem Gebäude seine Low Tech Bezeichnung und erzielen eine nachhaltige Gestaltung, frei von Verblendungen und Abhängungen. Neben wirtschaftlichen Grundrissen sind zu 100% recyclingfähige Baustoffe, nachhaltige Rohstoffe, nicht Verkleben von Materialien (Cradle to Cradle), Geothermie, Dachbegrünung, Wärmepumpe nur einige der Faktoren, die das Gebäude nachhaltig und zukunftsorientiert machen.
- Auslober
- 
                                        Fernuniversität in Hagen 
- Projektpartner
- 
                                        Generalübernehmer 
 Verfuß GmbH / DERICHS u. KONERTZ Baugesellschaft mbH&Co KG
 TGA - KD-PLAN GmbH&Co.KG
- Flächen
- BGF 5.185 m² | BRI 18.832 m³
Pläne
- 
                
                
  Erdgeschoss 
- 
                
                
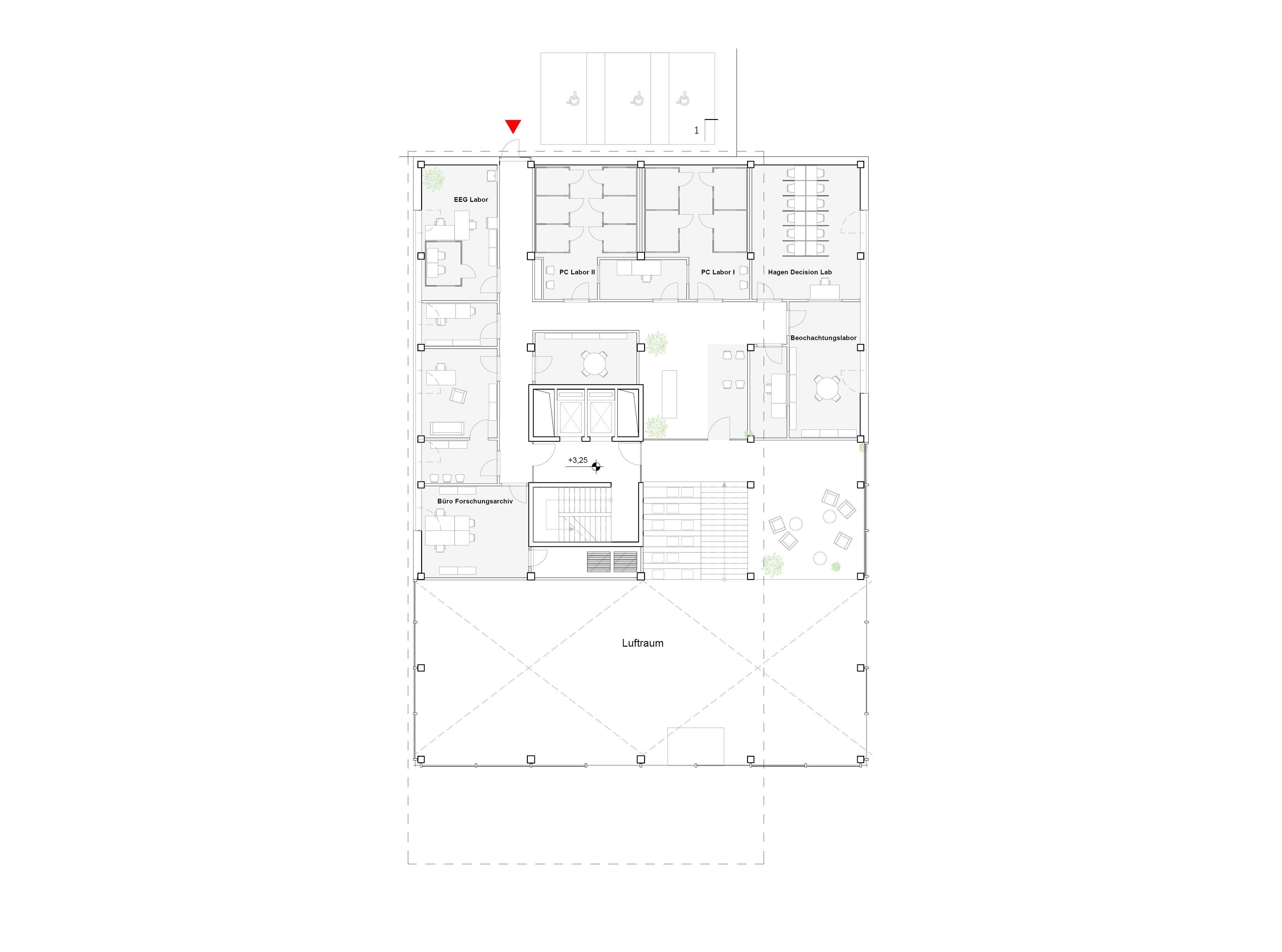
  1. Obergeschoss 
- 
                
                
  Regelgeschoss 
- 
                
                
  Ansicht Nord-West 
Der Baukörper ist in Sockelgeschoss und aufgesetztem Büroriegel 
gegliedert. Auf dem breiten gläsernen Sockel ruht ein schmaler massiver 
Riegel, dessen Auskragung eine Überdachung für das Foyer generiert. Die 
großzügige Treppe des Foyers bildet ein gestalterisches Augenmerk und 
dient der direkten Erschließung der Galerie und des 
Experimentalbereiches. Die „nicht öffentlichen“ Besprechungs- und 
Büroräume in den oberen Etagen des Riegels werden über einen internen 
Erschließungskern erschlossen. Die Differenzierung von Sockel und Riegel
 ist neben den Funktionen auch in der Materialität ablesbar. Der 
Büroriegel bildet mit seiner nachhaltigen modularen Holz Element Fassade
 einen schönen Kontrast zum leichten transparenten Unterbau.Materialien
 in ihren natürlichen Zuständen und die sichtbare Technik geben dem 
Gebäude seine Low Tech Bezeichnung und erzielen eine nachhaltige 
Gestaltung, frei von Verblendungen und Abhängungen. Neben 
wirtschaftlichen Grundrissen sind zu 100% recyclingfähige Baustoffe, 
nachhaltige Rohstoffe, nicht Verkleben von Materialien (Cradle to 
Cradle), Geothermie, Dachbegrünung, Wärmepumpe nur einige der Faktoren, 
die das Gebäude nachhaltig und zukunftsorientiert machen.
 
 
 
 
 
 
 
 
 
 
