Neubau und Generalinstandsetzung in laufendem Betrieb
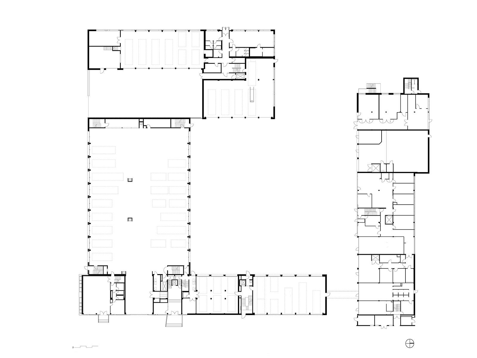
Die Generalinstandsetzung der Feuerwehrhauptzentrale umfasst neben Kernsanierungen der Bestandsgebäude eine interne Neuorganisation der Abteilungen und damit verbundene bauliche Anpassungen. Hierfür werden vorhandene Gebäude aufgestockt und durch Neubauten ergänzt oder ersetzt. Eine neue Brücke verbindet die bisher baulich voneinander getrennten Gebäudekomplexe. Das erste Obergeschoß des zentralen Baukörpers an den die Brücke anschließt, wird als Erschließungsgeschoss ausgebildet und nimmt die Gemeinschaftsbereiche auf. Auch ein abteilungsübergreifender Besprechungsraum wird hier integriert. Die Gebäudesanierungen werden gemäß der Energieleitlinien der Stadt Köln in Anlehnung an den Passivhausstandard ausgeführt. Hierbei werden die Fassadenelemente, Fenster und Dach erneuert. Die Fahrzeughallen werden niedrigtemperiert ausgebildet. Der Innenbereich wird für die Neuanordnung der Bürobereiche mit offener Mittelzone (Kommunikationsbereiche, Teeküchen, tlw. Besprechungsräume) und fassadenseitig angeordneten Kombibüros entkernt.
- Fertigstellung
- 2023
- Leistungsphasen
- 1- 9
- Bauherr
- Berufsfeuerwehr Stadt Köln – Feuerwache 5
- Verfahren
- VOF Verfahren
- Flächen
- BGF 20.259 m² | BRI 83.909 m³
- Wettbewerb
- 1. Preis
- Fotos
-
E. Wiedenhöver
- Visualisierung
-
M. Karakoc
- Kenndaten
- Neubau und Generalinstandsetzung in laufendem Betrieb




Visualisierung - Realität

