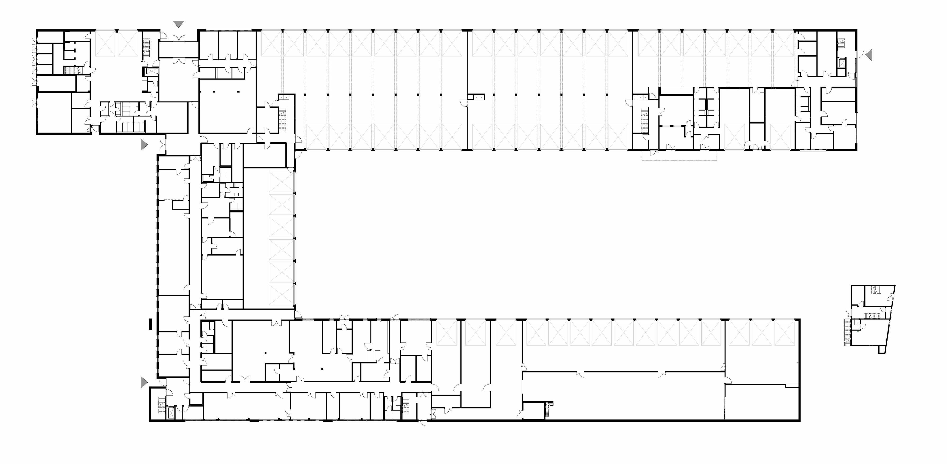
Der Neubau der Hauptfeuer- und Rettungswache gibt der sonst größtenteils grün- und landwirtschaftlich ausgeprägten Umgebung eine klare städtebauliche Orientierung. Zwei parallele, langestreckte Baukörper mit verbindendem Zwischenriegel begleiten den Straßenraum der Edith-Weyde-Straße und akzentuieren nach Westen die Raumkante zur Bahnlinie und dem angrenzenden Wohngebiet. Diese H-Grundrissform ermöglicht eine optimale funktionale Zuordnung der wesentlichen, im Erdgeschoss zu platzierenden Feuerwehrfunktionen. Es entsteht ein geschützter Hofbereich für die introvertierten Nutzungen der Feuerwache und des Rettungsdienstes mit teils zum Grünraum geöffneten Feuerwehrübungsbereich, dessen südlicher Abschluss das Brandhaus mit Übungsturm bildet. Die Nord-Süd-Ausrichtung der Hauptriegel dient als Schallschutz des Eigenlärms für die westlich anschließende Wohnbebauung.
Die Einbindung der Feuerwache in den öffentlichen Grünraum wird nach Westen durch den am Bahndamm verlaufenden Grünkorridor für Sport- und Freizeitaktivitäten erzielt. Die sich anschließenden baumbestandenen und schrankenüberwachten Stellplätze erweitern den grünen Freiraum nach Norden. Die Feuerwehr, als wesentlicher öffentlicher Funktionsträger, stellt sich transparent und offen nach außen dar. Feuer- und Rettungswache sind ablesbar und doch räumlich verbunden. Die Freiwillige Feuerwehr ist integrativer Bestandteil, bildet aber eine in sich abgeschlossene und eigenständige Einheit in dem Ensemble.
Das Material- und Farbkonzept sieht eine Komposition aus Ziegel- und Metallkuben vor. Darüber hinaus wurde besonderes Augenmerk auf die Lebenszykluskosten gelegt, um die Wirtschaftlichkeit auch in Zukunft zu gewährleisten. Für eine effiziente Nachhaltigkeit wurden soziokulturelle, wie auch ökologische und wirtschaftliche Parameter betrachtet. Das Gebäude ist funktional, langlebig, wartungsarm und auf eine gute Kommunikation hin konzipiert.
- Fertigstellung
- 2020
- Leistungsphasen
- 1-5, 8 künstlerische Oberleitung
- Bauherr
- Stadt Leverkusen
- Projektpartner
-
ZECH Hochbau AG (ehemals BAM Deutschland AG)
LHI Leasing GmbH - Flächen
- BGF 15.750 m² | BRI 76.011 m³
- Wettbewerb
- 1. Preis
- Fotos
-
(1-11) Annika Feuss, (12,13) Elmar Wiedenhöver
- Projektnummer / Copyright
- © GATERMANN + SCHOSSIG


