Zum Hauptinhalt der Seite springen

403 | Haus G + S - Köln

Die vielfach teilbare Villa passt sich an die Gegebenheiten Villa einer Nachbarschaft aus Steildachhäusern der fünfziger Jahre wie auch an den alten Baumbestand des eigenen Grundstücks perfekt an. Die unterschiedlichen Orientierungen und energetischen Bedingungen führten dabei zu einer differenzierten, bis in die Materialwahl variierten Ausprägung. Wie ein Puzzle setzt sich der Baukörper aus einem zweigeschossigen, weiß verputzten Massivbau, einem übergreifenden Aluminium- Glas-Körper und zwei flankierenden eingeschossigen Holzkuben zusammen. Gipfelpunkt des Gebäudes im penthouseartigen Dachaufsatz ist ein Schlafraum, der an eine großzügige Dachterrasse oberhalb der glasgedeckten Westloggia angrenzt. Um die Lichtführung des Grundstücks in der ganzen Tiefe des Gebäudes erlebbar zu machen, wurden Eingangs- und Essbereich zweigeschossig angelegt. Aus dem nach Norden zur Straße weitgehend geschlossenen Bau entwickelt sich im Schutz der Bäume im Süden und Westen eine intensive Beziehung zwischen der räumlich komplexen, vielfach mit Kunstobjekten verstärkten und weit verglasten Innenwelt und einem nach ganz ähnlichen Schwerpunkten gestalteten Garten mit Wasserfläche und weiteren Kunstobjekten.




Fertigstellung
2000
Leistungsphasen
1 - 9
Bauherr
privat
Projektpartner

Thomas Weil, Künstler (Kunstwand)

Flächen
BGF 593 m² | BRI 1.734 m³
Auszeichnungen
2002 Internationaler Architekturpreis der Holger-Reiners-Stiftung „Die besten Einfamilienhäuser A, CH, D 2002“
Fotos

(1,2,3,8,9) Robertino Nikolic
(4-7)  Jens Willebrand
(10,11) Elmar Schossig

Projektnummer / Copyright
© GATERMANN + SCHOSSIG

Pläne

Lageplan
Lageplan
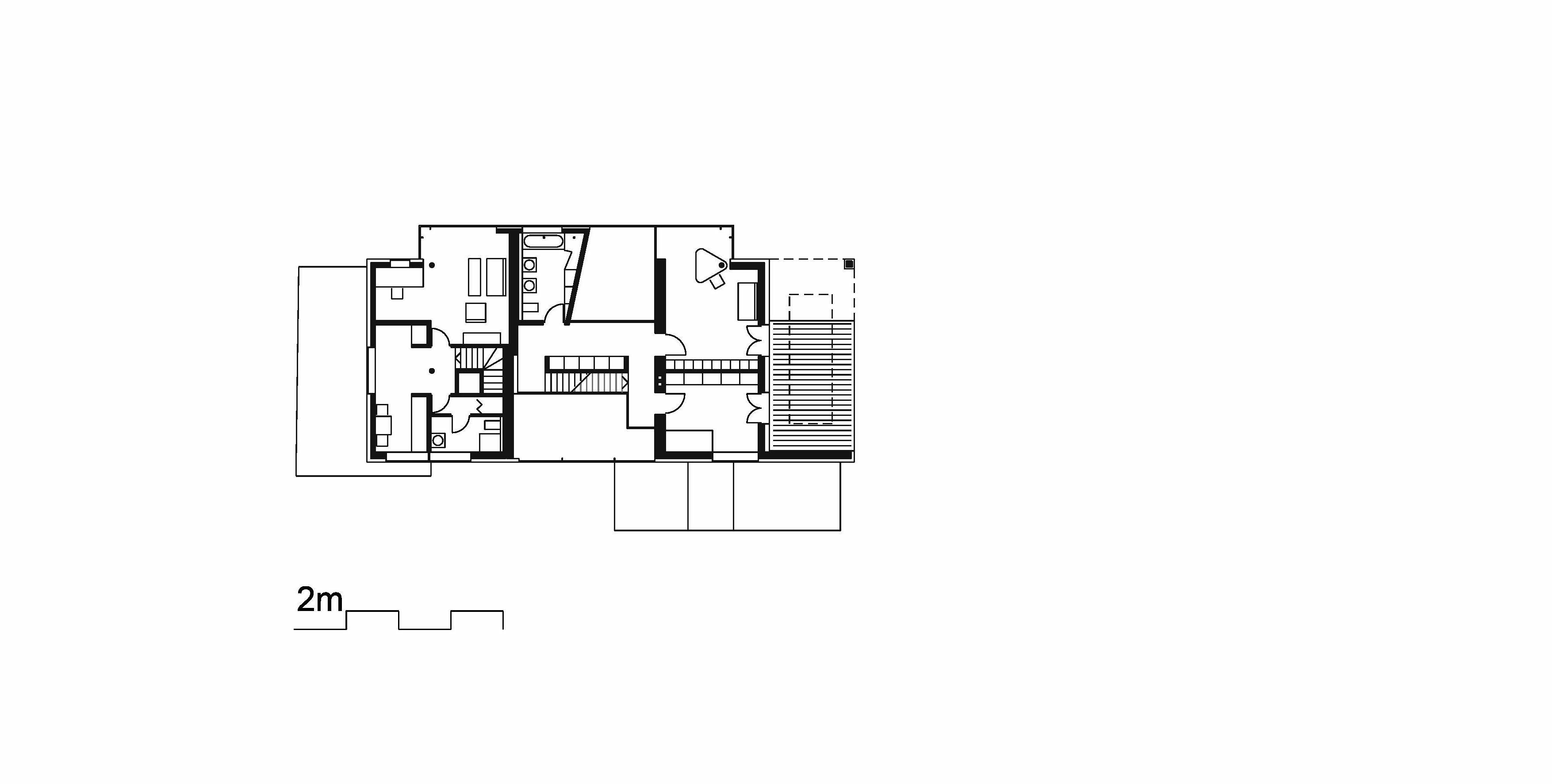
Erdgeschoss
Erdgeschoss
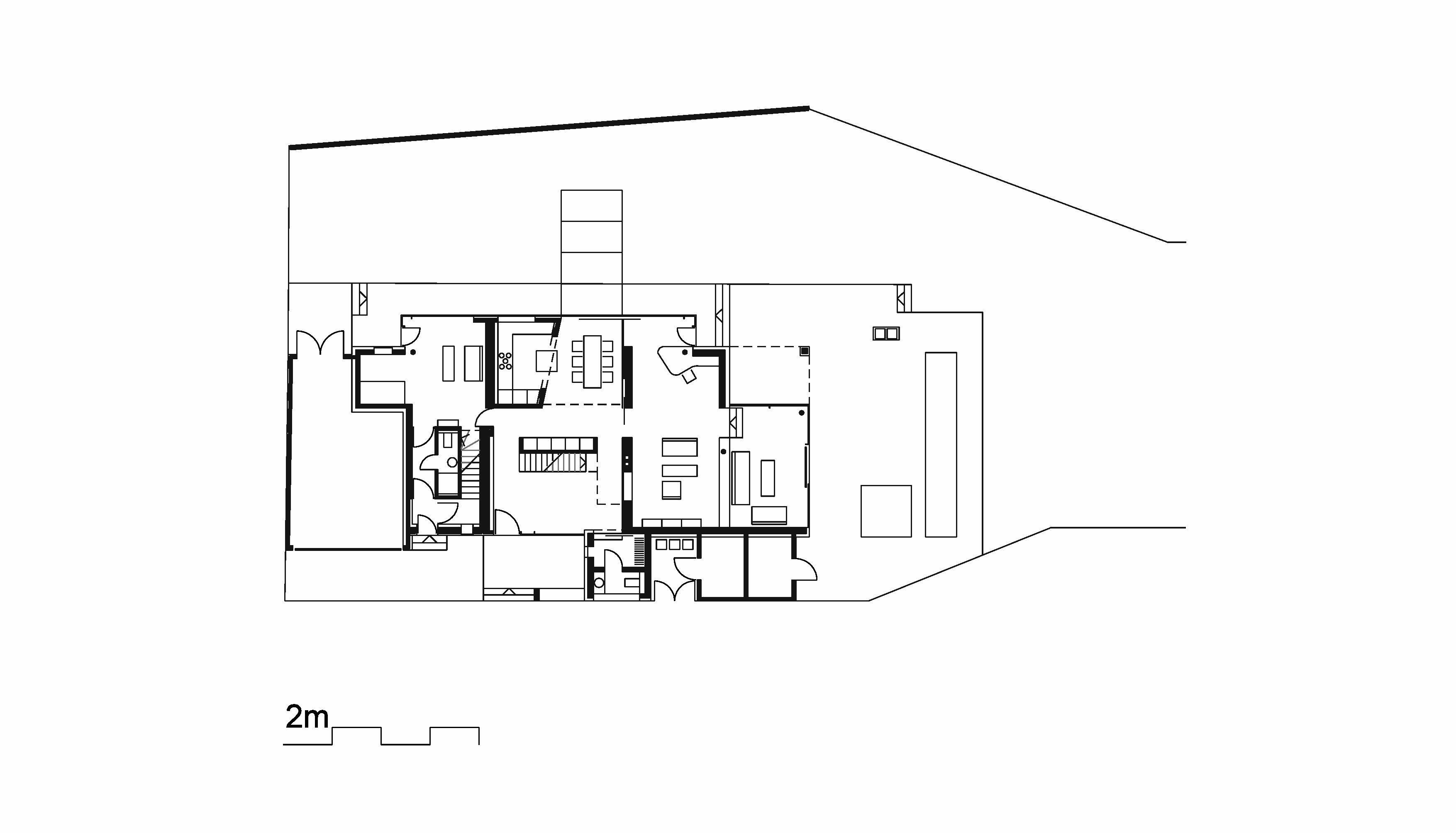
Obergeschoss
Obergeschoss
Schnitt 1
Schnitt 1
Schnitt 2
Schnitt 2
Nach obenNach oben