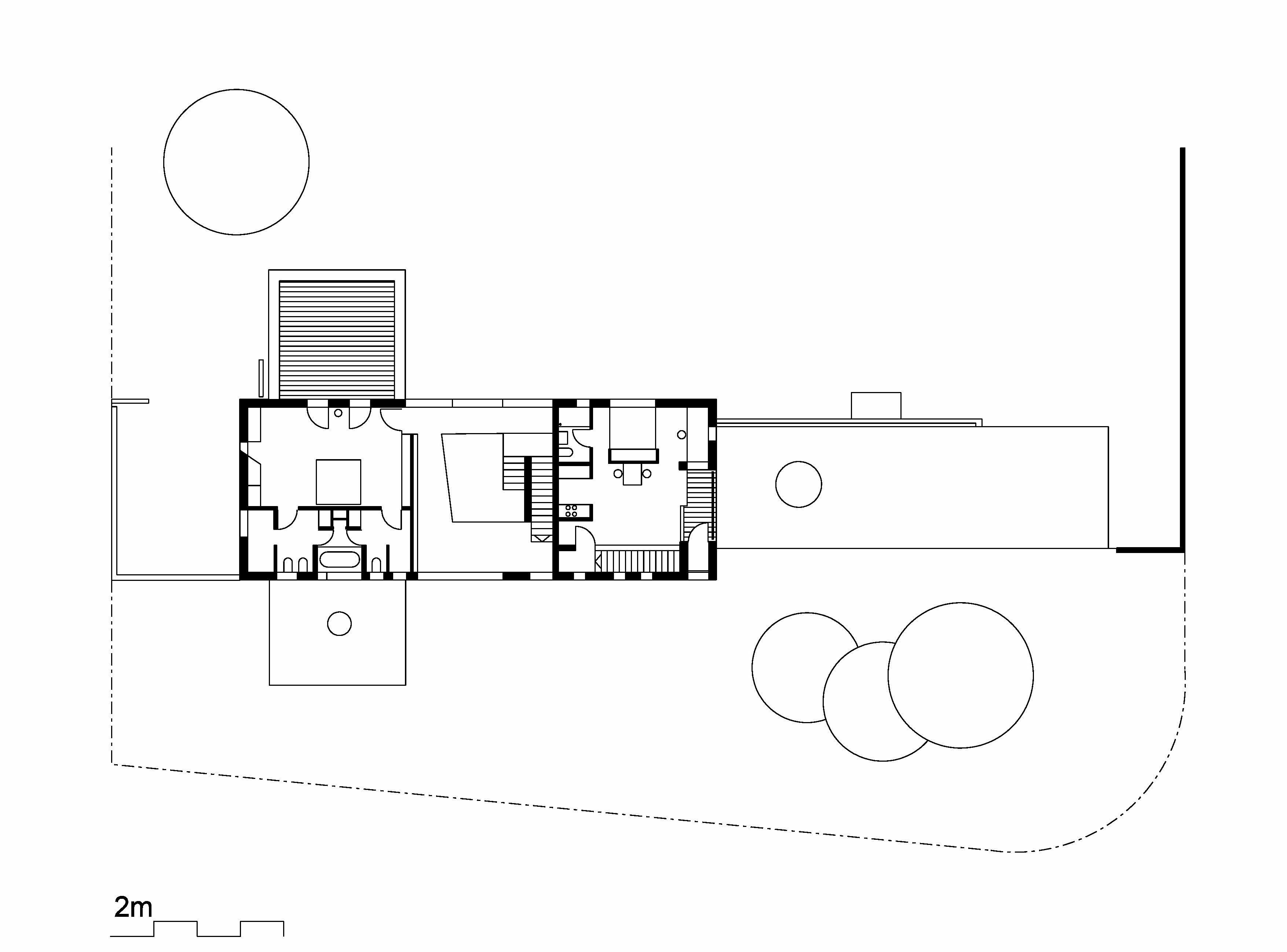
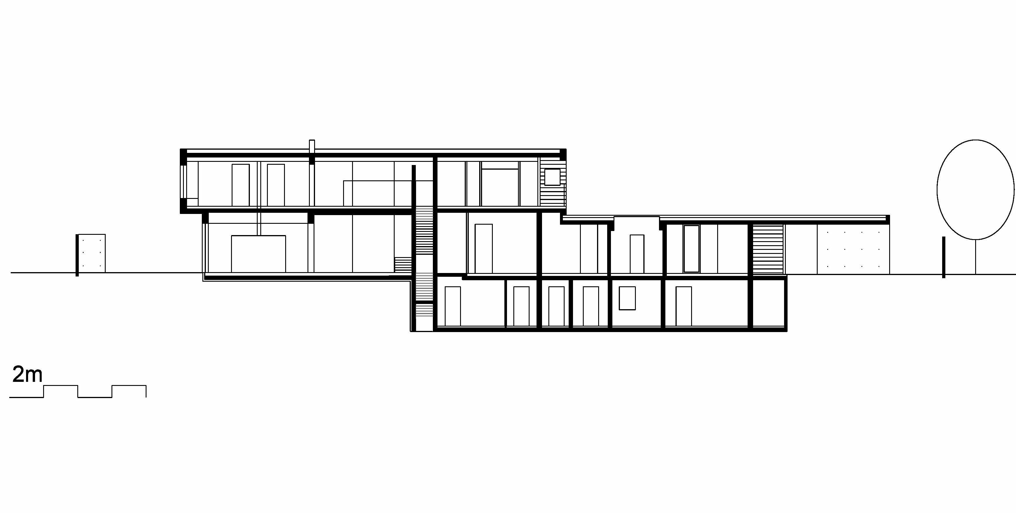
Das Wohnhaus ist in seiner Grundkomposition aus drei Kuben aufgebaut, die aus unterschiedlichen Materialien bestehen. Hierbei werden die beiden unteren, T-förmig zueinander gestellten Kuben aus Sichtbeton und Naturstein von dem dritten, aus Holz gefertigten, überlagert. Der Grundgedanke dieser Anordnung besteht darin, sich nach Norden zur Straße schall- und energietechnisch zu schützen und nach Süden zum Garten das Gebäude zu öffnen. Diesem Ansatz entspricht die geschlossenere Ausbildung der Nordfassade, und die in großen Teilen verglaste Südseite. Besondere Landschaftsausschnitte werden als bildhafte Elemente in das Gebäude mit einbezogen. Bei der Materialwahl wurde auf eine durchgängige Gestaltung der einzelnen Kuben mit jeweils einem Material Wert gelegt, um das Zusammenspiel zu einem sinnlichen Erlebnis zu verdichten.
- Fertigstellung
- 1999
- Leistungsphasen
- 1-9
- Bauherr
- privat
- Flächen
- BGF 494 m² | BRI 1.951 m³
- Auszeichnungen
- 1999 - Internationaler Architekturpreis der Holger-Reiners-Stiftung „Die besten Einfamilienhäuser A, CH, D “, Auszeichnung
- Fotos
-
Jens Willebrand
- Projektnummer / Copyright
- © GATERMANN + SCHOSSIG
Pläne




