Zum Hauptinhalt der Seite springen

284 | Kindertagesstätte - Köln

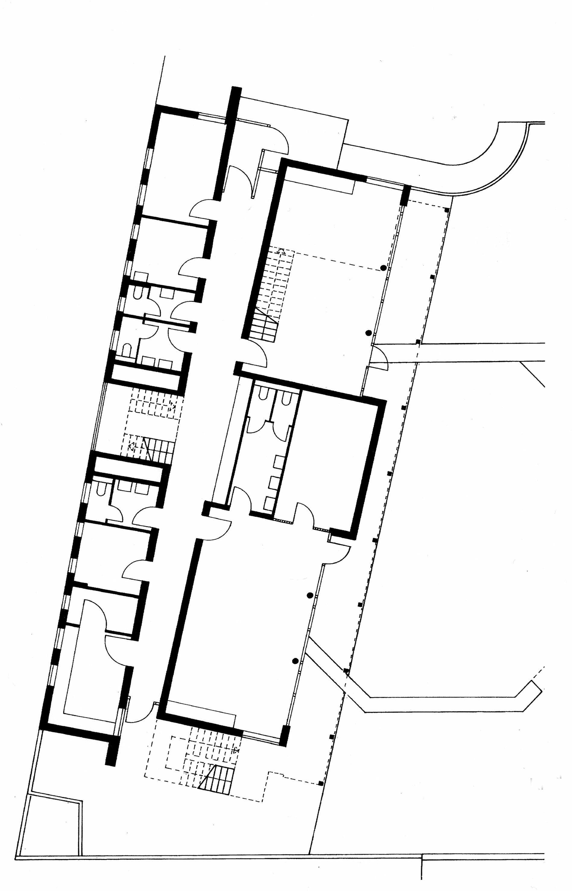
Der Wettbewerb auf dem engen, innerstädtischen Grundstück führte zu einer kompakten straßenseitigen Bebauung für den Sozialen Wohnungsbau und im Blockinneren zur Anordnung der Kindertagesstätte. Auf der Freiraumebene sind bodenbündig die Fundamentmauern der alten jüdischen Synagoge abgebildet und auf der anschliessenden benachbarten Brandwand ein Sternenhimmel mit Davidstern, beides Hinweise auf die historische Nutzung, aufgemalt. Alle Freiflächen sind vom Kindergarten nutzbar. Dem Gruppen- und Gemeinschaftsraum sind Freibereiche in Form von Terrassen und Balkonen vorgelagert. Eine schmale im Dach verglaste "Spielstrasse" liegt an einer farbigen Wand, die die Nebenräume nach Nord-Westen und die Gruppenräume nach Süd-Osten trennt und so das passive Energiekonzept unterstützt. In die Gruppenräume sind Galerien eingebaut, so dass über Schiebeelemente ein grosser und ein kleiner Gruppenraum sowie zusätzlich eine Spielempore entstehen kann. In der Kindertagesstätte werden 60 Kinder in drei Gruppen im Alter von 3 bis 11 Jahren ganztägig betreut.


Fertigstellung
2000
Leistungsphasen
1 - 5, 8 (künstl. Oberbauleitung)
Bauherr
Stadt Köln, Amt für Stadterneuerung und Ed Züblin AG, NL Köln
Flächen
BGF 950 m² | BRI 2.002 m³
Ort
Köln, NRW
Wettbewerb
1. Preis
Auszeichnungen
"Kölner Architekturpreis 2000" für Sozialer Wohnungsbau und Kindertagesstätte Körnerstraße
Veröffentlichungen

Kölner Architekturführer

Fotos

Jens Willebrand

Projektnummer / Copyright
© GATERMANN + SCHOSSIG
Kindertagesstätte - Köln
Struktur
Kita eg
Kita eg
Kita 1 og
Kita 1 og
Kita 2 og
Kita 2 og
Kita Längsschnitt
Kita Längsschnitt
Kita Querschnitt
Kita Querschnitt
Sozialer Wohnungsbau mit Kindertagesstätte - Köln
Lageplan - Sozialer Wohnungsbau mit Kindertagesstätte
Nach obenNach oben