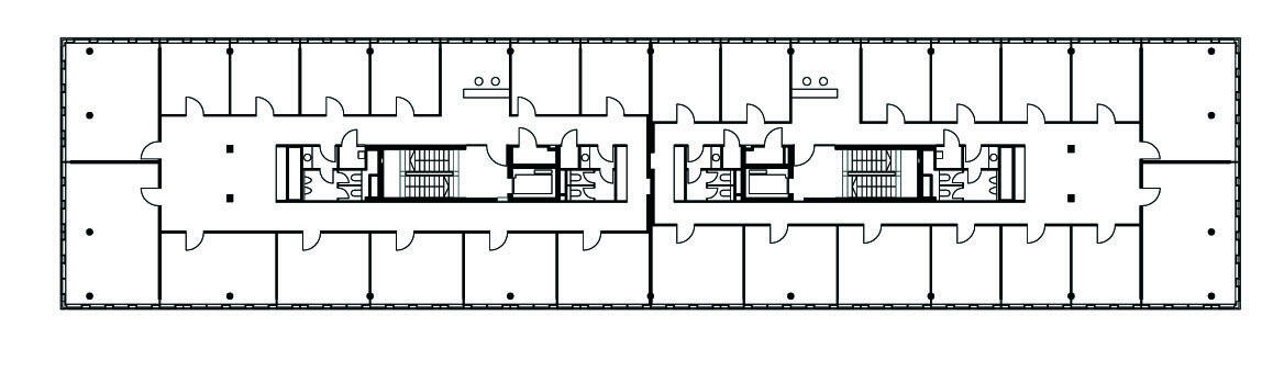
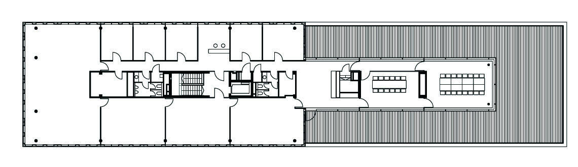
Seine Wirkung bezieht der im Rheinauhafen Köln fertiggestellte Neubau vor allem aus dem spannungsreichen Kontrast zwischen den geschlossenen Aluminiumpaneelen und den transparenten Glasfeldern der IntegralFassade. Das Besondere an den in Neuseeland hergestellten Aluminiumpaneelen ist die durch ein spezielles Ätz- und Eloxierverfahren eingeprägte grafische Struktur, die dem Gebäude je nach Tageszeit, Wetter und Blickwinkel des Betrachters ein neues Erscheinungsbild verleiht - von dunkelgrau bis gold. Die Büroflächen werden standardmäßig natürlich über die fassadenintegrierten Klappen be- und entlüftet. Ein gut aufeinander abgestimmtes Energiekonzept, mit Bauteilaktivierung der Betondecken, zentral gesteuerten, tageslichtlenkenden Sonnenschutzlamellen (Retrolamellen) sowie der Nachtauskühlung über die Klappen, gewährleistet eine Grundkühlung des Gebäudes. Eine flexible Grundrissstruktur ermöglicht alle Büroformen vom Großraumbüro bis zum Einzelbüro.
- Fertigstellung
- 2006
- Leistungsphasen
- 1 - 8 ( 8 künstlerische Oberleitung)
- Bauherr
-
moderne stadt Gesellschaft zur Förderung des Städtebaues und der Gemeindeentwicklung mbH
- Flächen
- BGF 7.230 m² | BRI 25.441 m²
- Energie
- 16% besser als EnEV
- Auszeichnungen
- 2007 - best architects 07, Label best architects
- Fotos
-
(1-6) R. Perrey, (7,8) E. Wiedenhöver
- Projektnummer / Copyright
- © GATERMANN + SCHOSSIG
Pläne


